Terreno con proyecto aprobado en Vilanova |Ref.: VC-09

  • 230.000€
Vilanova i la Geltrú, Garraf, Barcelona, Catalunya, 08800, España
  • VC-09
  • ID
  • Casas o chalets, Terreno
  • Tipo de inmueble
  • 111
Compra
Terreno con proyecto aprobado en Vilanova |Ref.: VC-09
Vilanova i la Geltrú, Garraf, Barcelona, Catalunya, 08800, España
  • 230.000€

Descripción

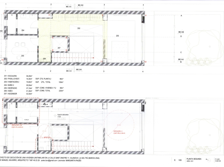
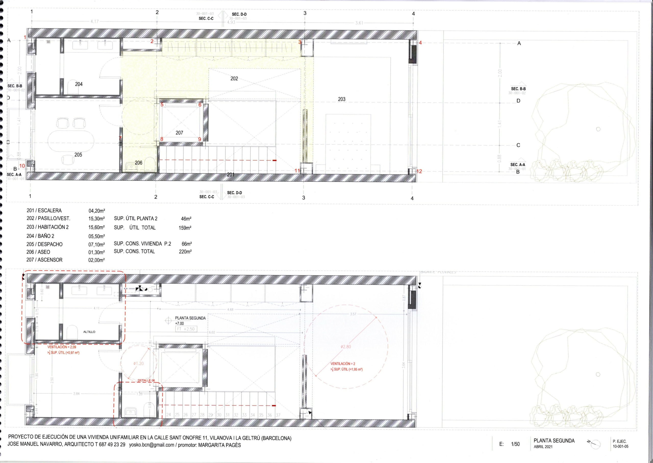
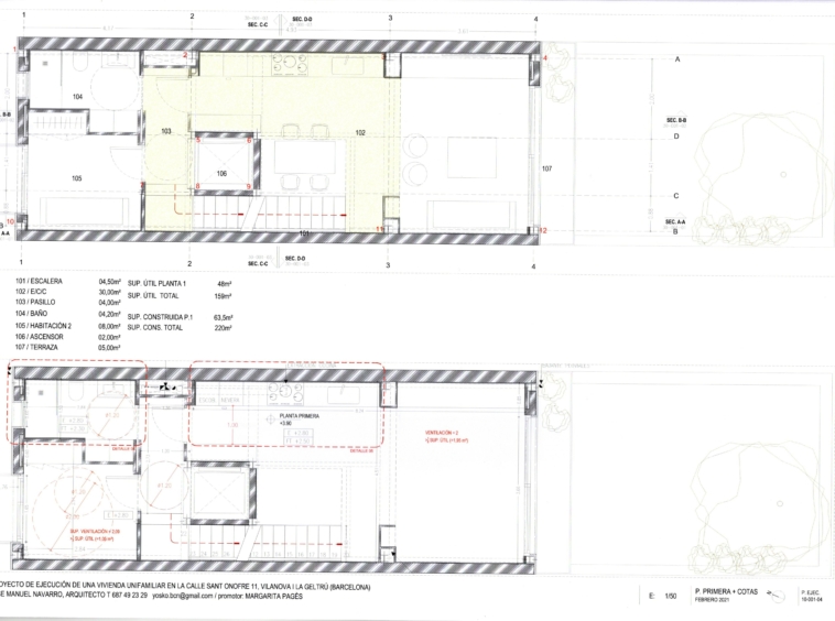
Oportunidad única: terreno con estructura iniciada para construir una vivienda de planta baja más dos alturas en una ubicación privilegiada, con proyecto aprobado.

Situado en el corazón de Vilanova, con fácil acceso a todos los servicios y comodidades.

Precio a consultar (impuestos y gastos no incluidos).

Para más información y visitas, no dudes en contactarnos.

  • Población Vilanova i la Geltrú

Detalles

Actualizado en marzo 26, 2025 a 7:29 pm
  • ID: 29966
  • Precio: 230.000€
  • Superficie: 111 m²
  • Tipo de inmueble: Casas o chalets, Terreno
  • Tipo de operación: Compra

Simulador de hipoteca

Mensualmente
  • Depósito
  • Loan Amount
  • Monthly Mortgage Payment
  • Impuestos
  • Monthly HOA Fees
%
%
%

Información de contacto

DarderLupgens.
  • DarderLupgens.

Preguntar sobre este inmueble

Ver inmuebles similares

Comparar listados

Comparar
DarderLupgens.
  • DarderLupgens.
×